


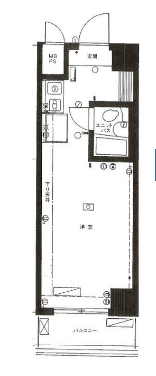
間取り図
オーナーチェンジ
九段リハイム8階 1R
1R/20.81㎡ (約6.30坪)
2,600万円



間取り図
オーナーチェンジ
物件の販売情報
所在地
東京都 千代田区 九段北1-9-14
価格
2,600万円
間取り
1R
専有面積
20.81㎡(約6.30坪)
㎡単価
125万円/㎡
坪単価
413万円/坪
バルコニー面積
3.30㎡
土地共有持分
-
竣工年月
1985年8月築
階数 / 階建
8 階 / 11 階
向き
-
小学校区域
富士見小学校
管理費
8,600円
修繕積立金
7,200円
備考
-
現況
賃貸中
引渡時期
相談
最終更新
2025/10/05
次回更新予定
2025/10/06
この物件のハザードマップを見る
※国土交通省「ハザードマップポータルサイト」を別画面で開きます。
当物件は現行の耐震基準の建物です。住宅ローン控除等における築年数の要件を満たします。
一般に知られている1981年6月以降であっても、現行基準とならない物件もあるので、詳細をよく確認しておきましょう。
物件の建物詳細を問い合わせる一般に知られている1981年6月以降であっても、現行基準とならない物件もあるので、詳細をよく確認しておきましょう。
オーナーチェンジ物件情報
賃料情報
月額賃料82,000円
管理費-
敷金-
礼金-
入居状況入居中
利回り情報
表面利回り3.78%
月額収入(参考)82,000円
年間収入見込み:984,000円
※ オーナーチェンジ物件は現在入居者がいる状態での売買となります。
※ 利回りは現在の賃料条件に基づく参考値です。
※ 詳細な収支計算や契約条件については別途ご相談ください。
まずはお気軽にお問い合わせください。
物件に関するご質問やご相談は、お電話またはお問い合わせフォームよりお願いいたします。
「番町麹町不動産を見た」とお伝えいただけますとスムーズに内見予約が可能になります。
※内見は事前予約が必要です。
お電話でのお問い合わせ
03-3263-6565
営業時間 10:00~18:00
ローンシミュレーション
月々のお支払い目安
15,800円
ローン + 管理費等込み
ローン返済0円
管理費8,600円
修繕積立金7,200円
ローン条件
頭金
520万円
金利
1%
返済年数
35年
⚠️
このシミュレーションは目安の数値です。実際の条件については金融機関にご確認ください。
九段リハイムのマンション詳細情報はこちら

MANSION LIBRARY
九段リハイム
建物の詳細情報はこちら
詳細を見る
設備・特徴
都市ガス上水道下水道外観タイル張りオートロック
営業担当者
元島 亮祐
番町麹町不動産 / 営業
03-3263-6565
営業時間 10:00~18:00
担当者のメッセージ
九段下駅徒歩3分の分譲賃貸マンションです!
内見予約について
内見をご希望の際は事前予約が必要です。 下記の内見予約フォームまたはお電話にてご連絡ください。 ご希望の日時をいくつかお知らせいただけると調整しやすくなります。
あなたへのおすすめ物件
この物件に基づくおすすめをご紹介
.jpg)
九段フラワーホーム
2,480万円
東京都千代田区九段北4丁目
1R20.77㎡
.jpg)
九段フラワーホーム
2,480万円
東京都千代田区九段北4丁目
1R21.07㎡

平河町プラザ
2,480万円
東京都千代田区平河町1丁目
1R19.55㎡

菱和パレス九段
2,800万円
東京都千代田区九段北4-1-31
1R22.00㎡

サンテミリオン九段
2,990万円
東京都千代田区九段南3丁目6番8号
1K22.96㎡

ダイアパレス二番町
2,580万円
東京都千代田区二番町11-9
1R24.16㎡

平河町ドリームマンション
2,630万円
東京都千代田区平河町1-7-2
1R26.40㎡

ロイヤルパレス一番町第2
2,700万円
東京都千代田区一番町
1R24.30㎡