


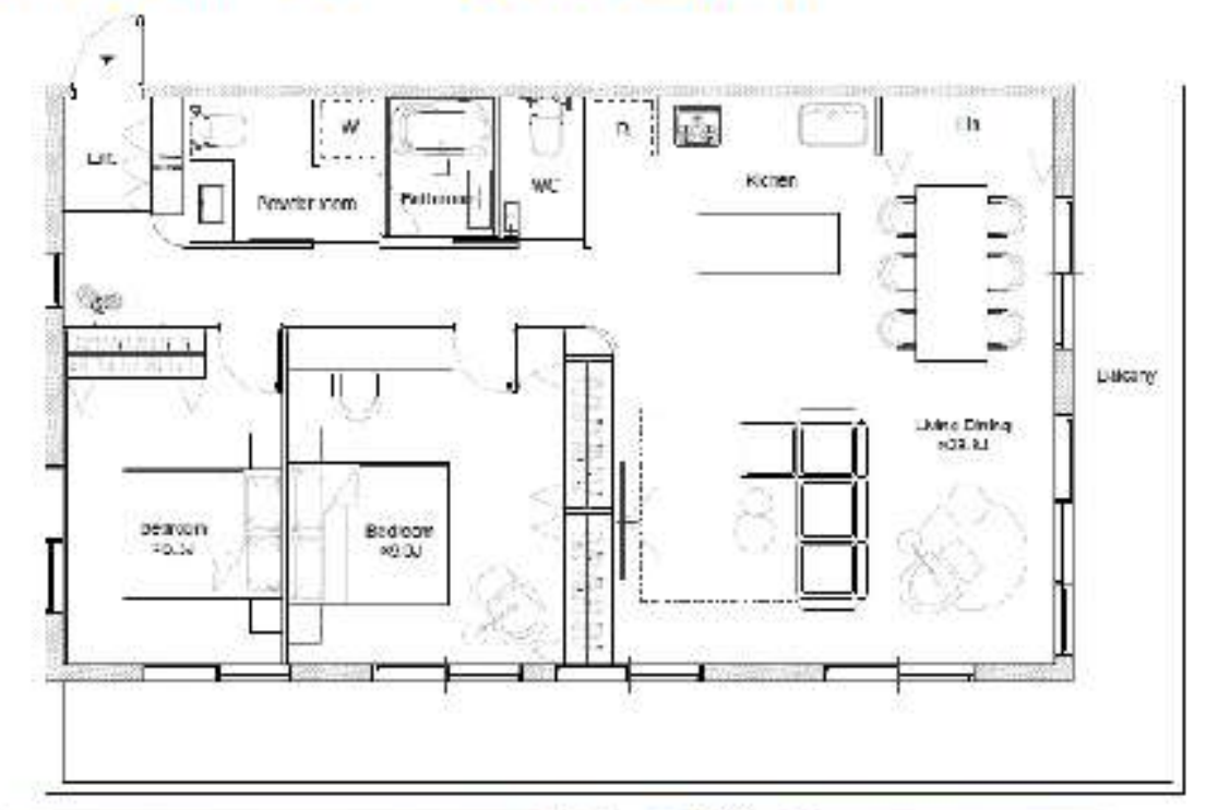
間取り図
飛栄九段ビル11階 2LDK
2LDK/94.72㎡ (約28.65坪)
27,500万円価格変更あり
変更前: 31,800万円



間取り図
物件の販売情報
所在地
東京都 千代田区 九段北4丁目
価格
27,500万円価格変更あり
変更前: 31,800万円
間取り
2LDK
専有面積
94.72㎡(約28.65坪)
㎡単価
290万円/㎡
坪単価
960万円/坪
バルコニー面積
28.60㎡
土地共有持分
-
竣工年月
1988年4月築
階数 / 階建
11 階 / 11 階
向き
南東
小学校区域
九段小学校
管理費
34,790円
修繕積立金
10,976円
備考
-
現況
空室
引渡時期
相談
最終更新
2025/10/05
次回更新予定
2025/10/06
この物件のハザードマップを見る
※国土交通省「ハザードマップポータルサイト」を別画面で開きます。
当物件は現行の耐震基準の建物です。住宅ローン控除等における築年数の要件を満たします。
一般に知られている1981年6月以降であっても、現行基準とならない物件もあるので、詳細をよく確認しておきましょう。
物件の建物詳細を問い合わせる一般に知られている1981年6月以降であっても、現行基準とならない物件もあるので、詳細をよく確認しておきましょう。
まずはお気軽にお問い合わせください。
物件に関するご質問やご相談は、お電話またはお問い合わせフォームよりお願いいたします。
「番町麹町不動産を見た」とお伝えいただけますとスムーズに内見予約が可能になります。
※内見は事前予約が必要です。
お電話でのお問い合わせ
03-3263-6565
営業時間 10:00~18:00
ローンシミュレーション
月々のお支払い目安
45,766円
ローン + 管理費等込み
ローン返済0円
管理費34,790円
修繕積立金10,976円
ローン条件
頭金
5,500万円
金利
1%
返済年数
35年
⚠️
このシミュレーションは目安の数値です。実際の条件については金融機関にご確認ください。
飛栄九段北ビルのマンション詳細情報はこちら

MANSION LIBRARY
飛栄九段北ビル
建物の詳細情報はこちら
詳細を見る
同じ建物の売り出し中物件 (1件)
この物件の直近の価格推移
日付 | 価格 | |
---|---|---|
2025-08-24 | 27,500万円 | 959万円/坪 |
2025-06-01 | 31,800万円 | 1,109万円/坪 |
設備・特徴
オートロックエレベーターウォシュレットフローリングバルコニーペット相談角部屋
営業担当者
元島 亮祐
番町麹町不動産 / 営業
03-3263-6565
営業時間 10:00~18:00
担当者のメッセージ
★こちらのお部屋のおすすめポイント★ ◆二部屋一括売り ◆専有面積72.07平米+94.72平米 ◆2024年10月フルリノベーション完成 ◆南向きで陽当り・眺望良好 ◆住居専用オートロック ◆ペット飼育相談 ◆敷地内駐車場2台付 ※詳細はメールまたはお電話(3263-6565)にてお問い合わせ下さい。
内見予約について
内見をご希望の際は事前予約が必要です。 下記の内見予約フォームまたはお電話にてご連絡ください。 ご希望の日時をいくつかお知らせいただけると調整しやすくなります。
あなたへのおすすめ物件
この物件に基づくおすすめをご紹介

ニューライフ一番町
23,990万円
東京都千代田区一番町4-5
2LDK108.99㎡

グランフォルム六番町
32,800万円
東京都千代田区六番町3-1
1K95.52㎡

麹町パークハウス
29,500万円
東京都千代田区麹町4-5-7
2LDK72.14㎡

麹町パークハウス
30,000万円
東京都千代田区麹町4-5-7
2LDK72.41㎡

坂の上テラス
24,990万円
東京都千代田区九段南2-4-15
3LDK84.31㎡

グランドメゾン紀尾井坂
25,800万円
東京都千代田区麹町4-3-6
4LDK118.77㎡

シェルトーレ三番町
34,900万円
東京都千代田区三番町5-10
2LDK88.05㎡

パークコート ザ・三番町ハウス
35,000万円
東京都千代田区三番町
2LDK87.23㎡