


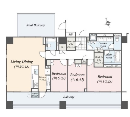
間取り図
ザ・パークハウスグラン三番町15階 3LDK+WIC+SIC
3LDK/116.72㎡ (約35.31坪)
89,000万円



間取り図
物件の販売情報
所在地
東京都 千代田区 三番町5-19
価格
89,000万円
間取り
3LDK
専有面積
116.72㎡(約35.31坪)
㎡単価
763万円/㎡
坪単価
2,521万円/坪
バルコニー面積
30.46㎡
土地共有持分
11,672/1,281,965
竣工年月
2014年7月築
階数 / 階建
15 階 / 15 階
向き
南西
小学校区域
九段小学校
管理費
42,960円
修繕積立金
32,690円
備考
-
現況
空室
引渡時期
相談
最終更新
2025/10/05
次回更新予定
2025/10/06
この物件のハザードマップを見る
※国土交通省「ハザードマップポータルサイト」を別画面で開きます。
当物件は現行の耐震基準の建物です。住宅ローン控除等における築年数の要件を満たします。
一般に知られている1981年6月以降であっても、現行基準とならない物件もあるので、詳細をよく確認しておきましょう。
物件の建物詳細を問い合わせる一般に知られている1981年6月以降であっても、現行基準とならない物件もあるので、詳細をよく確認しておきましょう。
まずはお気軽にお問い合わせください。
物件に関するご質問やご相談は、お電話またはお問い合わせフォームよりお願いいたします。
「番町麹町不動産を見た」とお伝えいただけますとスムーズに内見予約が可能になります。
※内見は事前予約が必要です。
お電話でのお問い合わせ
03-3263-6565
営業時間 10:00~18:00
ローンシミュレーション
月々のお支払い目安
75,650円
ローン + 管理費等込み
ローン返済0円
管理費42,960円
修繕積立金32,690円
ローン条件
頭金
17,800万円
金利
1%
返済年数
35年
⚠️
このシミュレーションは目安の数値です。実際の条件については金融機関にご確認ください。
ザ・パークハウスグラン三番町のマンション詳細情報はこちら

MANSION LIBRARY
ザ・パークハウスグラン三番町
建物の詳細情報はこちら
詳細を見る
同じ建物の売り出し中物件 (3件)
設備・特徴
オートロック宅配ボックスエレベーターモニター付きインターホン分譲タイプコンシェルジュサービス24時間有人管理
営業担当者
元島 亮祐
番町麹町不動産 / 営業
03-3263-6565
営業時間 10:00~18:00
担当者のメッセージ
三菱地所の高級分譲マンション!パークハウスシリーズの1LDKです! 「ザ・パークハウス グラン 三番町」は設計を三菱地所設計、そして大林組が施工を担当しています。 免震構造を採用し、地下1階地上15階建て人気のパークハウスシリーズの築浅ハイグレード分譲賃貸マンションです。 セキュリティラインは、住棟エントランスでの2箇所をはじめ5ヵ所設けられ、さらに安心の24時間有人管理体制です。 コンシェルジュカウンターには8時から22時までコンシェルジュが置かれ、受付サービスや取り次ぎサービスなど多彩なサービスが提供されホテルライクな生活が期待されます。 【このマンションから近い幼稚園・保育園】 麹町保育園 九段幼稚園 四番町保育園
内見予約について
内見をご希望の際は事前予約が必要です。 下記の内見予約フォームまたはお電話にてご連絡ください。 ご希望の日時をいくつかお知らせいただけると調整しやすくなります。
あなたへのおすすめ物件
この物件に基づくおすすめをご紹介

パークコート千代田四番町
84,800万円
東京都千代田区四番町4-6
3LDK143.81㎡

ブリリア二番町
80,000万円
東京都千代田区二番町11-10
2LDK90.04㎡

番町パークハウス
68,000万円
東京都千代田区四番町8-6
3LDK127.90㎡

ブリリア一番町
64,800万円
東京都千代田区一番町20番5号
3LDK101.08㎡

ザ・パークハウスグラン三番町26
68,800万円
東京都千代田区三番町26-1
2LDK104.53㎡

アビテ市ヶ谷五番町
3,900万円
東京都千代田区五番町2番12号
1R25.69㎡

ドミール五番町
6,980万円
東京都千代田区五番町12番
1LDK36.71㎡

ブリリア一番町
38,800万円
東京都千代田区一番町20番5号
2LDK74.84㎡